


Helårsgrund
Skovmarken 115500 Middelfart
1.225.000 kr.
Byggegrund beliggende direkte til grønt område
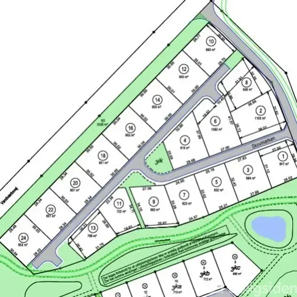
Sidste grund i etape 4, der er beliggende direkte ud mod grønt område, i den efterspurgte udstykning ved Skrillingegaard, til salg. Den nye udstykning har taget form i det sydøstlige Middelfart, tæt på Lillebælt, Skrillinge Strand, og Middelfart Golf og Marina. Skrillingegaard er navnet på Middelfarts nye boligområde, der ligger centralt i forhold til både skole og pasningsmuligheder, by- og kulturliv, samt selvfølgelig natur og vand. Ligeledes er der nem adgang til motorvej E45, og området er oplagt for pendlere mod Jylland eller mod Odense. Én af Skrillingegaards store forcer som ny bydel er omgivelserne. Naturen, de mange udendørs aktiviteter og ikke mindst vandet. For at dyrke netop disse kvaliteter bygges bydelen op omkring åbne, grønne kiler, der giver optimale muligheder for udsyn mod Lillebælt, Fænø og fra de højeste arealer Gamborg Fjord. De grønne kiler giver ikke bare fornemmelsen af plads og højt til loftet, de kommer også til at danne rammen om hverdagens rekreative oplevelser for både boligområdets og nærområdets beboere. Fra Skrillingegaards grønne områder vil der komme stiforbindelser til de omkringliggende boligområder og de naturskønne arealer ved kysten. Sælger af udstykningen har lagt ekstraordinært mange penge i at gøre denne udstykning til Middelfarts absolut mest attraktive udstykning, med store grønne arealer, stier og generelt god luft mellem villaerne. Her er med andre ord tale om attraktive parcelhusgrunde, hvilket afspejler sig i den store interesse der er for området.
Dage til salg
Så længe har boligen været til salg
Boligen på kort
Prisudvikling
Se prisudviklingen for denne bolig samt området, den ligger i. Dyk ned i historiske data og følg markedets udvikling, så du kan blive opdateret på tendenserne i området.
Boligens historie
Se tidslinjen for boligens historie på markedet.
2025
dec.
Udbudt til salg på boligsiden
1.225.000 kr.
2025
dec.
Udbudt til salg på boligsiden
1.225.000 kr.
Solgte boliger i området
| Navn | Pris | Boligtype | Størrelse | Salgsdato | m² pris | Afstand |
|---|
Boligen og grunden
Her finder du information om grunden, miljø-forhold og interessen for boligen – alt samlet for at give dig et komplet overblik.
Radonrisiko
Radonrisikoen vurderes til at være meget lav
Besøgsstatistik
Se udviklingen i visninger, klik til mægler og gemt af brugere i al boligens tid på markedet
- Visninger
- Klik til mægler
- Dag
- Uge
- Måned
Internetforbindelser
Offentlig vurdering
Se seneste vurdering, eller seneste foreløbige vurdering
Området
Der er 40.158 indbyggere i Middelfart Kommune. Kommuneskatten er på 25,8% og grundskyldspromillen på 6,8‰.
Udforsk Middelfart
Skoler i Middelfart, tæt på boligen
| Navn | Afstand | Trivsel | Karaktergns. |
|---|---|---|---|
| Lillebæltskolen | 1,5 km | 3,8 af 6.0 | 7,6 af 12 |
| Østre skole, hovedskole | 2,2 km | 3,8 af 6.0 | 7,1 af 12 |
| Hyllehøjskolen | 2,3 km | 3,6 af 6.0 | 6,9 af 12 |